Rechercher (ville / numéro)
  • Concours pour l'extension et la resttructuration du collège Ch. Guérin - photo 0
  • Concours pour l'extension et la resttructuration du collège Ch. Guérin - photo 1
  • Concours pour l'extension et la resttructuration du collège Ch. Guérin - photo 2
  • Concours pour l'extension et la resttructuration du collège Ch. Guérin - photo 3
24
15
  • Concours pour l'extension et la resttructuration du collège Ch. Guérin - photo 0
  • Concours pour l'extension et la resttructuration du collège Ch. Guérin - photo 1
  • Concours pour l'extension et la resttructuration du collège Ch. Guérin - photo 2
  • Concours pour l'extension et la resttructuration du collège Ch. Guérin - photo 3

1/4

Perspective : Jean-Jacques Begel

Avant-après 2415

Concours pour l'extension et la resttructuration du collège Ch. Guérin

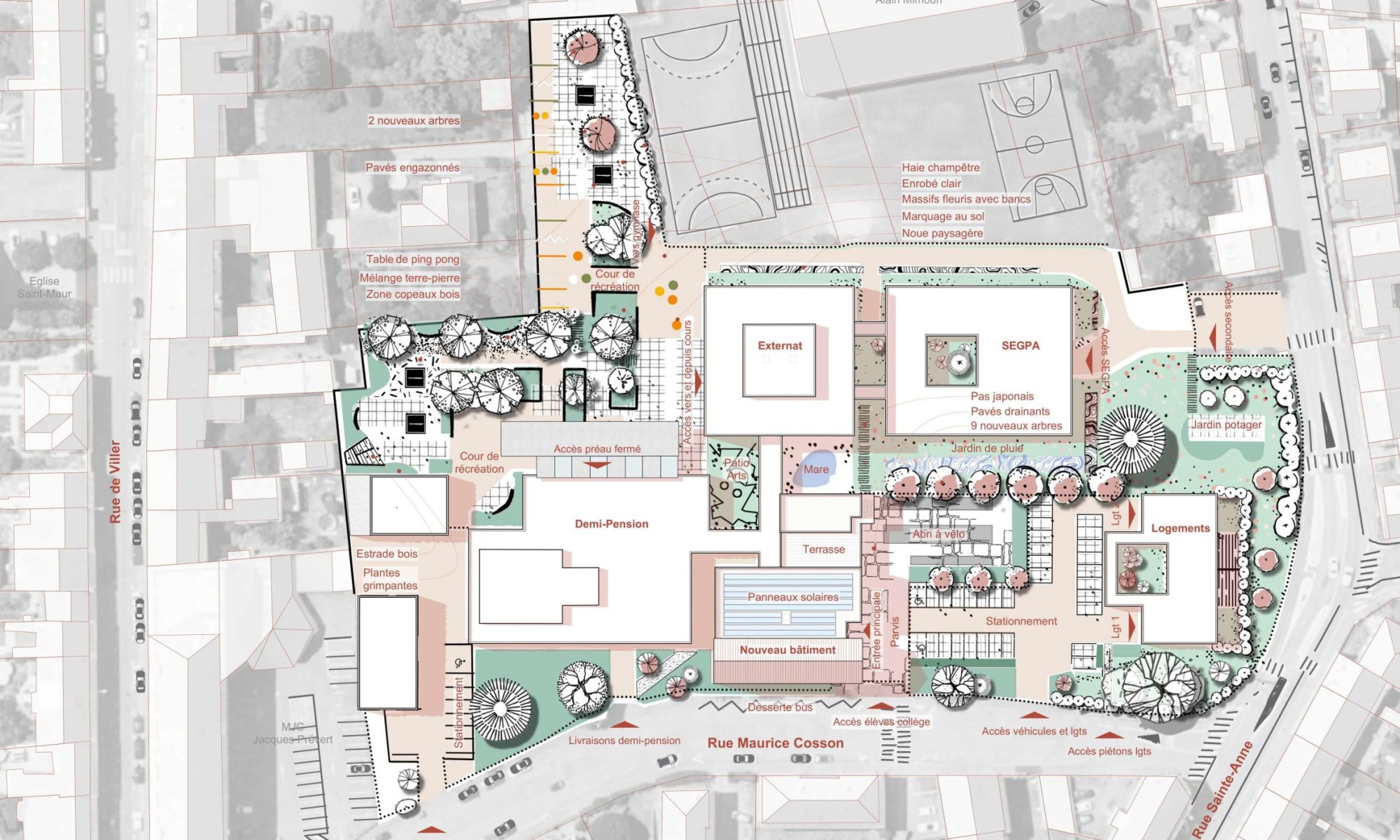
Transformer sans détruire : un collège durable, vivant et tourné vers l'avenir

Comment repenser un établissement scolaire sans perturber la vie de ses élèves ?
C'est le défi que nous avons relevé à travers ce projet de restructuration, où écologie, usage et patrimoine se rencontrent.

Limiter, réemployer, valoriser
Plutôt que d'ajouter des bâtiments modulaires, nous avons choisi d'implanter la nouvelle construction au cœur du site, pour maintenir le fonctionnement du collège pendant les travaux.
L'ancienne administration retrouve une seconde vie, transformée en logements, et même les façades existantes sont réutilisées pour créer abris vélos et éléments techniques.
Parce que le mètre carré le plus écologique est celui que l'on ne construit pas.

Un cadre de vie repensé, entre nature et pédagogie
Le projet s'articule autour du thème du jardin, véritable lieu d'apprentissage et de biodiversité.
Jardin potager, mare, jardin de pluie, revêtements perméables... 30 % des espaces sont en pleine terre pour accueillir la faune et la flore locales.
Une manière concrète de reconnecter les élèves à la nature, tout en valorisant le patrimoine paysager de Lunéville.

Une architecture chaleureuse et exemplaire
Le nouveau bâtiment, en structure bois passive et matériaux biosourcés, associe modernité et respect du contexte :

  • Une façade couleur grès des Vosges grès et zinc cuivré,
  • Un grand CDI comme signal culturel,
  • Des espaces lumineux et sécurisants pensés pour les usagers.

Ce projet incarne une conviction simple :

  • Construire moins, mais construire mieux ;
  • Préserver l'existant, valoriser le vivant ;
  • Offrir un lieu durable, accueillant et inspirant pour les générations à venir.
  • Date
    2024
  • Ville
    Lunéville
  • Mission
    Concours (perdu)
  • Coût global
    8 499 480 € CT HT
  • Surface
    3 962 m²
  • Maîtrise d'ouvrage
    Conseil départemental de Meurthe & Moselle
  • Maîtrise d'oeuvre
    ATELIER MPA (mandataire)
    BMT & Associés (associés)
    INGAIA (paysage)
    OTE
    OTHELIO