Rechercher (ville / numéro)
  • Diagnostic ancienne école - photo 0
  • Diagnostic ancienne école - photo 1
  • Diagnostic ancienne école - photo 2
  • Diagnostic ancienne école - photo 3
  • Diagnostic ancienne école - photo 4
  • Diagnostic ancienne école - photo 5
  • Diagnostic ancienne école - photo 6
  • Diagnostic ancienne école - photo 7
  • Diagnostic ancienne école - photo 8
  • Diagnostic ancienne école - photo 9
25
08
  • Diagnostic ancienne école - photo 0
  • Diagnostic ancienne école - photo 1
  • Diagnostic ancienne école - photo 2
  • Diagnostic ancienne école - photo 3
  • Diagnostic ancienne école - photo 4
  • Diagnostic ancienne école - photo 5
  • Diagnostic ancienne école - photo 6
  • Diagnostic ancienne école - photo 7
  • Diagnostic ancienne école - photo 8
  • Diagnostic ancienne école - photo 9

1/10

Etat existant

Avant-après 2508

Diagnostic ancienne école

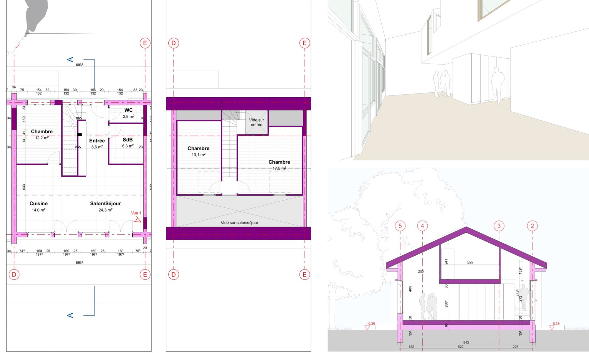
La commune de Colmey-Flabeuville possède un bâtiment vide (ancienne école) que faire de ce patrimoine ? Le diagnostic permet d'étudier toutes les possibilités du bâti et du contexte urbain alentour. Différents scenarii sont proposés pour accompagner les élus dans leurs décisions.

  • Date
    2025
  • Ville
    Colmey
  • Mission
    DIAG + FAISA
  • Coût global
    à déterminer
  • Surface
    272 m
  • Maîtrise d'ouvrage
    Commune de Colmey-Flabeuville
  • Maîtrise d'oeuvre
    Atelier MPA